Description
When you own a Summit Park Model, you’ve achieved a new level of destination camping. Special amenities pamper you in charming style for a truly enjoyable vacation retreat. Every square inch is engineered to enrich your leisure time with home like comforts and time saving conveniences. A large variety of floor plans, including loft units, offer you the versatility to meet your family’s needs and desires.
EXTERIOR FEATURES
10″ Extruded Steel I-Beam Chassis
Detachable Hitch
Corrosion Resistent Poly Underbelly
2″X6″ Transverse Floor Joist 16″ On Center
5/8″ Tongue and Groove Plywood Decking
Central Floor Ducted Heat
R22 Floor Insulation
2″X4″ Sidewall & Endwall Studs 16″ On Center
R11 Sidewall Insulation
3/8″ OSB Wall Sheathing
House Type Vapor Barrior On All Ext. Walls
90″ Sidewall Height
Residential Thermopane Single Hung Windows
Rear Door W/Deadbolt and Screen (N/A 355FL And 355FL-L)
Vinyl Siding W/Limited Lifetime Warranty
Residential Truss Rafters
R22 Roof Insulation
30 Year Warranty Asphalt Shingles
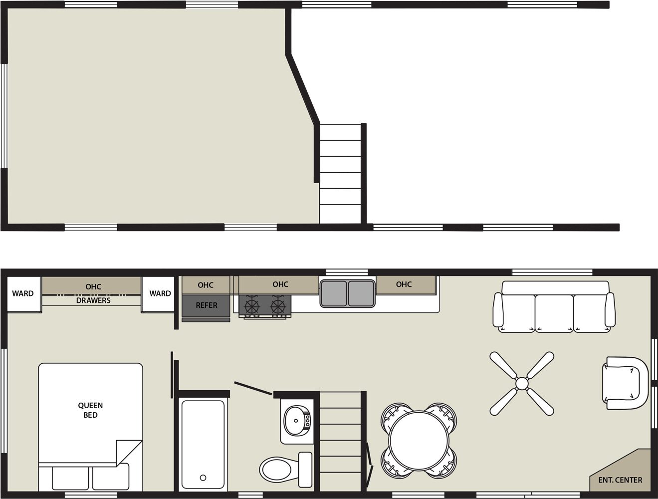
BATH AREA
1 Piece Fiberglass Tub/Shower W/Curtain
Residential Porcelain Elongated Toilet
Power Exhaust Fan W/Light
Medicine Cabinet
Linen Closet (Where Applicable)
Large Vanity Sink
Residential Style Bath Accessories
GFI Receptacle
ADDITIONAL FEATURES
50 Electrical Service W/Power Cord
56,000 BTU Furnace W/Electric Ignition N/A 355FL
20 Gallon Electric Water Heater
LP and Smoke Detectors
Fire Extinguisher
Residential Rocker Light Swithces
Gypsum Ceiling Board W/ Cove Molding
Exterior Porch Lights
Exterior GFI Recept
Hurricane Tie Down Straps
BEDROOM AREA
60X75 Residential Bed
Oversized Wardrobe W/Drawers
Egress Window
LED Lighting
Residential Carpet and Padding
LIVING AREA
Hide A Bed Sofa W/Swivel Rocker
Vertical Blind at Patio Door
Designer Window Valances
Entertainment Center W/Cable Hook-Up
Ceiling Fan W/Light Kit
Residential Window and Door Trim
Base Trim at Floor Line
KITCHEN/DINING AREA
17 Cu. Ft. Frost Free Refrgerator
30″ Gas Range
Spacemaster Over the Range Microwave
Residential Cabinetry
Laminated Countertop With Backsplash
Full Extension Drawer Guides
Deep Stainless Steel Residential Sink
USB Port
Hardwood Dinette Table W/4 Chairs
LED Lighting
GFI Receptacles
OPTIONAL FEATURES
Premium Vinyl Siding
Premium Upgrade Cabinetry
Residential Upgrade Vinyl Flooring
Recliner IPO Swivel Chair
Black Appliances IPO White
Metal Underbelly IPO Poly Underbelly
House Type Rear Door Where Applicable
40,000 BTU RV Furnace IPO 56K
15,000 BTU Floor Duct A/C
5,000 BTU Loft A/C (Loft Models Only)
16 Gallon Gas/Electric WH IPO 20 Gallon
Lft Up Queen Bed W/Storage
Night Stand
End Table
Serta Upgrade Mattress
Electric Fireplace
60″ Bedspread
Shower IPO Tub/Shower
Shower Doors
Tall Loft (Loft Models Only)

















