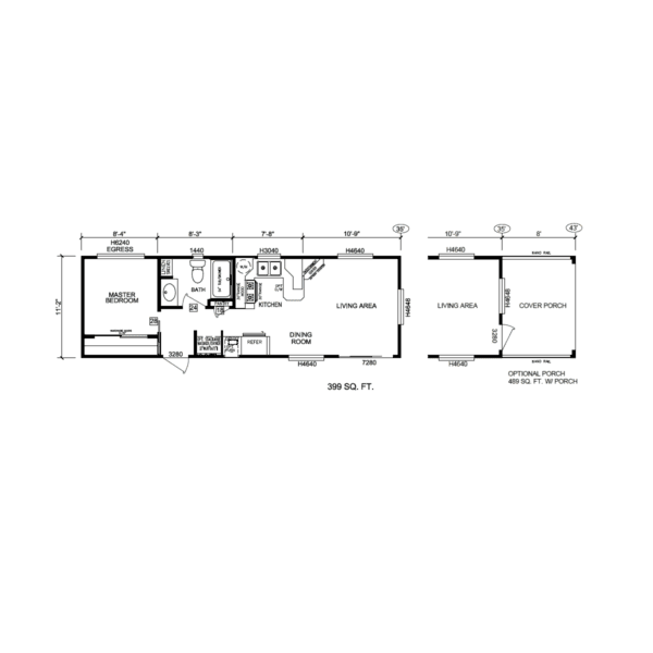
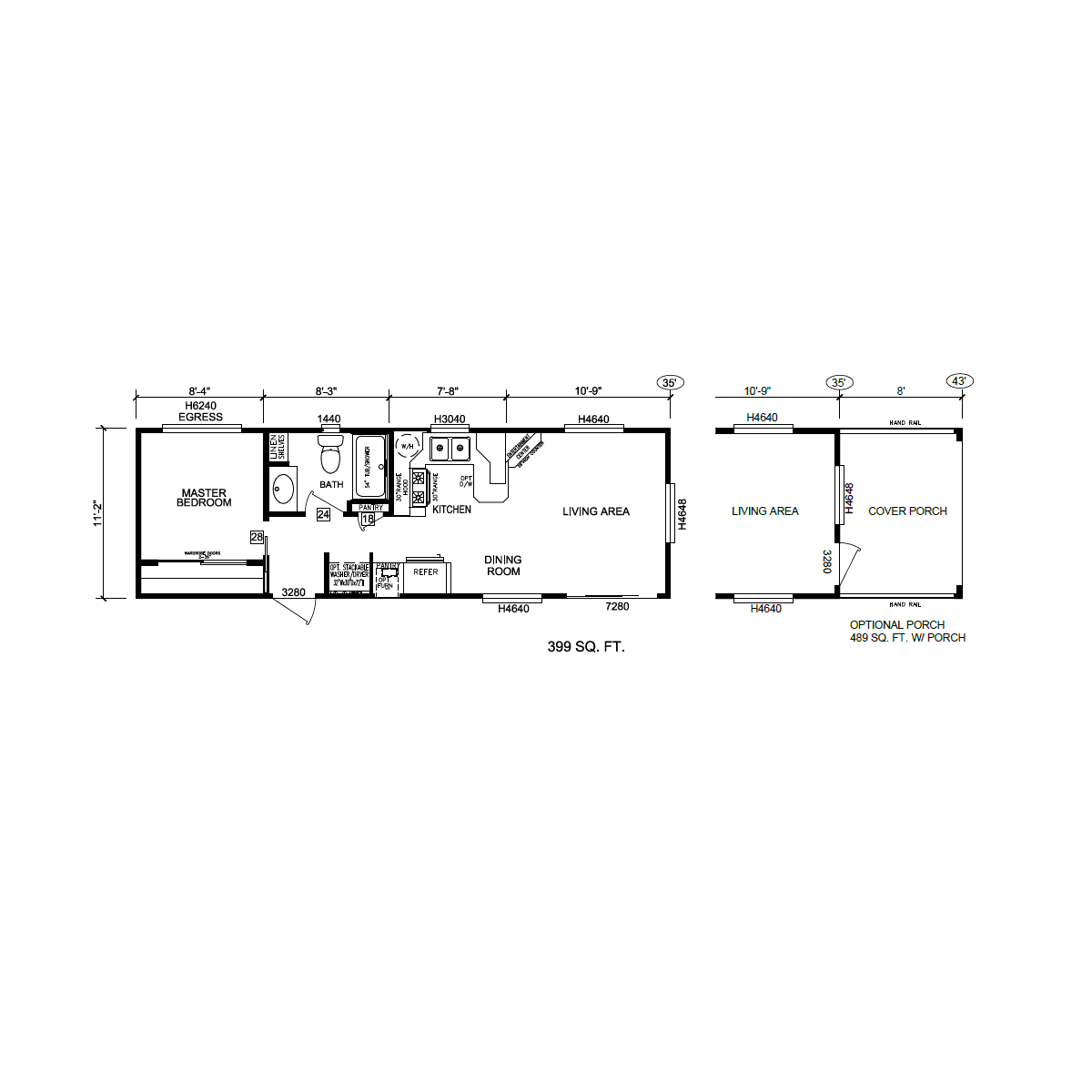
Additional information
| Width | 11'-2" |
|---|---|
| Length | 35' |
| Loft | No |
| Porch | Optional |
| Square Footage | 399' |
Lake Tahoe may be the ultimate vacation getaway, but when you live in the Silvercrest Sierra Limited Tahoe park model, you’ll be in the lap of that kind of luxury everyday. This house features 399 square feet of living space with the option for an 8’ porch to expand its footprint to 489 square feet. A combined living area, dining room, and kitchen, a roomy bathroom, and a cozy master bedroom make it the non-lofted tiny house of your dreams. Turn every day into an escape from the everyday. Get a custom quote now.
| Width | 11'-2" |
|---|---|
| Length | 35' |
| Loft | No |
| Porch | Optional |
| Square Footage | 399' |