Additional information
| Width | 11'-2" |
|---|---|
| Length | 35' |
| Loft | No |
| Porch | Optional |
| Square Footage | 399' |
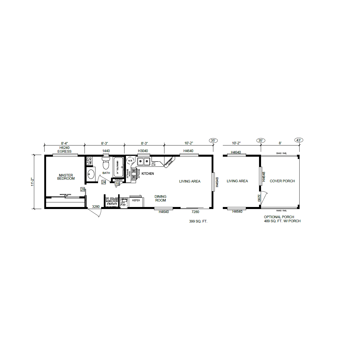
The stately Silvercrest Sierra Limited Whitney park model is a 399-square-foot house that proves how big tiny living can be. With a downstairs master bedroom, a combined kitchen, dining room and living area, and a large bathroom across from a linen nook, it is outfitted with everything you need for comfortable living in a small footprint. You can expand that footprint to 489 square feet with the optional addition of a covered porch. Personalize the Whitney park model home today. Contact us for a custom quote.
| Width | 11'-2" |
|---|---|
| Length | 35' |
| Loft | No |
| Porch | Optional |
| Square Footage | 399' |