Additional information
| Width | 11'-2" |
|---|---|
| Length | 35' |
| Loft | No |
| Porch | Optional |
| Square Footage | 399' |
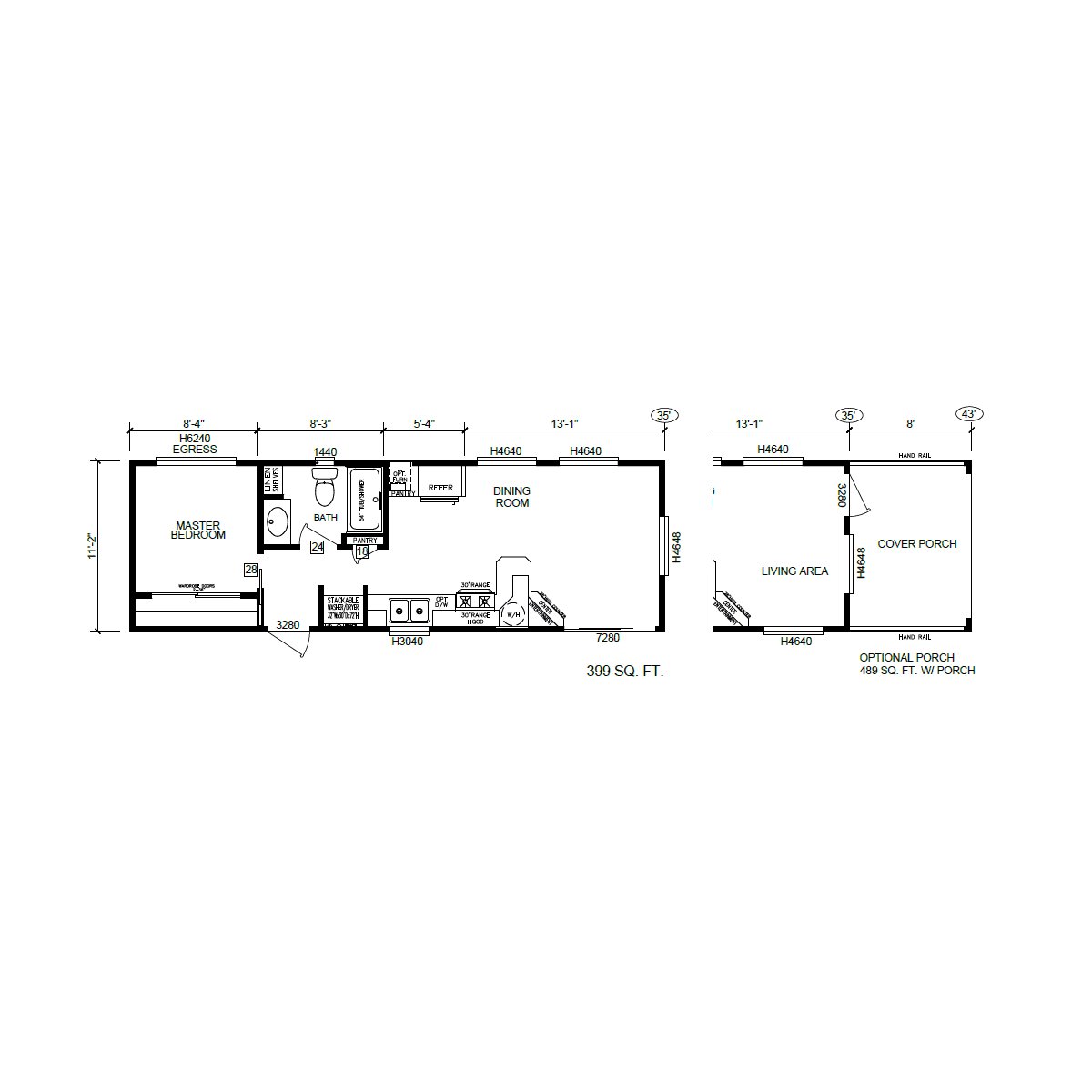
This Silvercrest Sierra Limited 399-square-foot park model feels so spacious we had to give it a name befitting its lofty proportions. So, of course we called it Sequoia, after some of the world’s biggest trees. With the optional front porch, you can expand the living space to 489 square feet. The layout includes a spacious seating area and a combined kitchen and dining area. With the open floor plan and the home’s many big windows, it is bright and airy. You’ll find a bathroom with a comfortable shower just past the kitchen, across from it a nook for a stackable washer and dryer. At the back of the house is the 11’2” x 8’4” master bedroom.
| Width | 11'-2" |
|---|---|
| Length | 35' |
| Loft | No |
| Porch | Optional |
| Square Footage | 399' |